Wangaratta Sports & Aquatic Centre - Netball Amenities

IMG_3378.jpeg

About the Project

Rural City of Wangaratta will deliver new netball Changerooms and Amenities (Stage 1) within the existing WSAC stadium structure following confirmation of a $3 million grant in partnership with the Victorian Government through the Community Support Fund.

The new facilities will include changerooms, public amenities, a netball registration area, netball office, kiosk and storage spaces. The project also includes demolishing the existing netball pavilion.

The existing netball pavilion is ageing and no longer meets expected standards for accessibility, functionality or player amenity. The new facilities will significantly improve the experience for players, officials, volunteers and visitors, while supporting the continued growth of netball in the region.

Dock 4 Architects have been engaged to complete the detailed design for Stage 1 and are currently incorporating feedback from key stakeholders. Construction is scheduled to commence in August 2026.

Council intends to complete Stage 2 in the future, dependant on funding. Stage 2 will include family changerooms, a large umpire duty room and change rooms (where the netball meeting room is located in Stage 1), kiosk extension and relocated registration room. It will also include a second floor including an office, meeting room, kitchen and multipurpose room.

Council and the Wangaratta Netball Association will continue to advocate for additional funding opportunities to support future upgrades to the HP Barr netball courts.


Stage 1 Scope of Works:

  •  New Modern Changerooms and public amenities which are DDA compliant and family friendly. 
  • Netball Registration Area.
  • Netball Office.
  • Kiosk.
  • Storage spaces.
  • Multipurpose/meeting room.
  • Demolition of the existing netball pavilion.

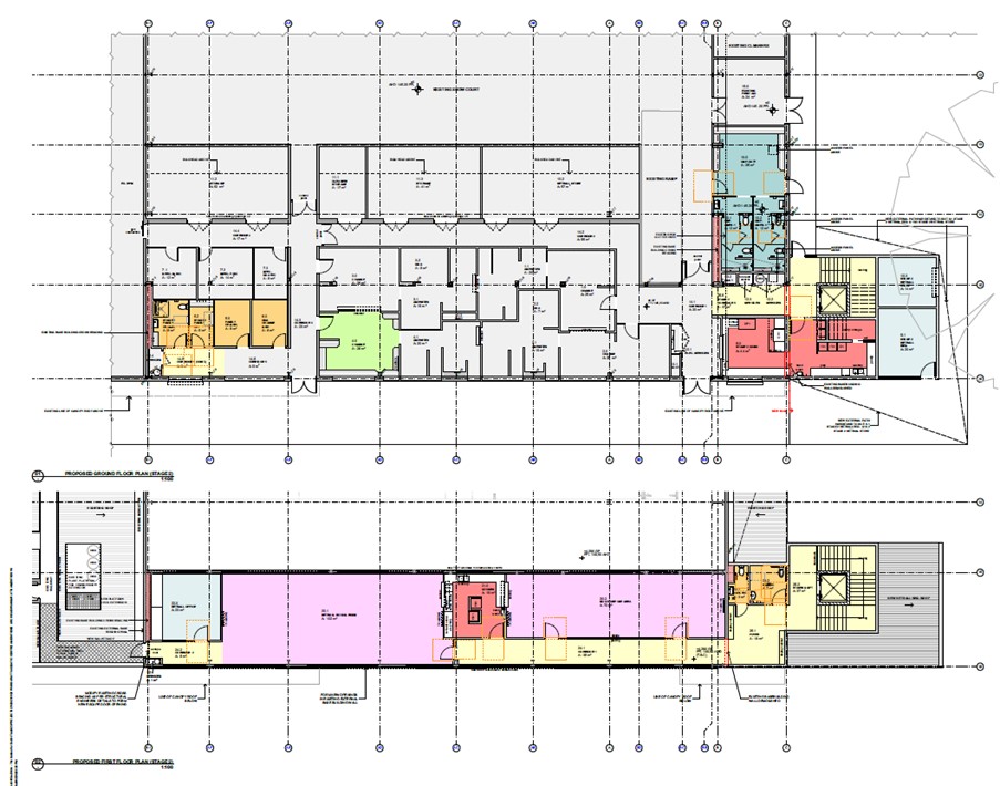
Stage 1 Plan:

Stage 1 Plan.jpg

Stage 2 Plan:

Stage 2 Plan.jpg

 

Timeline:

Design

  • Schematic design: Complete
  • Design development: Complete
  • Detailed design: December 2025 – April 2026

Procurement

  • Tender: May / June 2026
  • Tender award: Council Meeting – July 2026

Construction

  • Construction period: August 2026 - August 2027

Keeping the community informed:

Updates will be provided via the following:

Wangaratta Netball Association will host a community information session for members to learn more about the project and timelines. 

  • Day: May 2026 date to be confirmed
  • Time: TBC
  • Venue: HP Barr Reserve netball courts

        41 Schilling Drive, Wangaratta 

How is the project being funded?

This project is supported by a $3million grant in partnership with the Victorian Government through the Community Support Fund.  

 

What is being constructed and where will the new amenities be located?

New modern changerooms and public amenities which are DDA compliant and family friendly.

Netball registration area, netball office, kiosk, storage spaces, multipurpose/meeting room.

All built within the existing WSAC stadium structure (behind competition court no. 1). 

 

Why is the existing netball pavilion being demolished?

The existing netball pavilion is aged and no longer meets standards for accessibility, functionality, the needs of players, officials, or visitors. New facilities aim to improve user experience and support the continued growth of netball in the region.

 

Will netball training or weekend competitions be relocated during the demolition/construction period?

Wangaratta Netball Association will keep their members updated if there are any changes to usual programming. The contractor will be accessing the site from Park Lane with no access permitted across the netball courts during construction. 

 

Are there future stages planned beyond this Amenities Project?

Council and Wangaratta Netball Association will continue to seek funding opportunities to support future upgrades to the HP Barr Netball Courts.

 

Will access to inside WSAC be maintained during the construction period?

There will be no disruptions to access to WSAC during the construction. The main entry will not be affected. 

 

Will WSAC sports competitions and classes be cancelled or altered during the construction of the new amenities?

The new amenities will allow for a greater spectator capacity reducing the need for Council to rely on additional and/or temporary infrastructure for large events. The new amenities will be able to provide for larger local, regional and state level events.

 

Will the project impact major events scheduled at HP Barr Reserve?

No, there will be no impact to major events. 

 

Will the upgrades increase the capacity to host larger events?

The new amenities will allow for a greater spectator capacity reducing the need for Council to rely on additional and/or temporary infrastructure for large events. The new amenities will be able to provide for larger local, regional and state level events.

 

What User Groups will have access to the new amenities and facilities?

Whilst the primary user group is Netball, a Memorandum of Understanding (MOU) will be developed, as applicable, between WSAC and other stakeholders to confirm access arrangements and operational protocols. 

 

Will the main car park accessible via Schilling Drive still be accessible for WSAC visitors and members?

It is anticipated that parking will not be affected during the construction. Event organisers and precinct users will be notified of any temporary changes to parking and access. During construction, the contractor will be accessing the site compound via Park Lane.

 

 

 

Location

Wangaratta Netball Association, Wangaratta 3677  View Map

Google Map